Wróć

Pomorska

Zespołowe
Pomorska - główne zdjęcie
Lokalizacja: Wrocław
Autorzy: Helena Wacławiec, Patrycja Burda

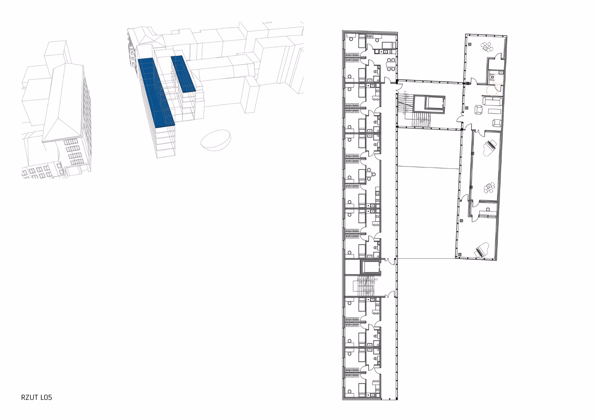
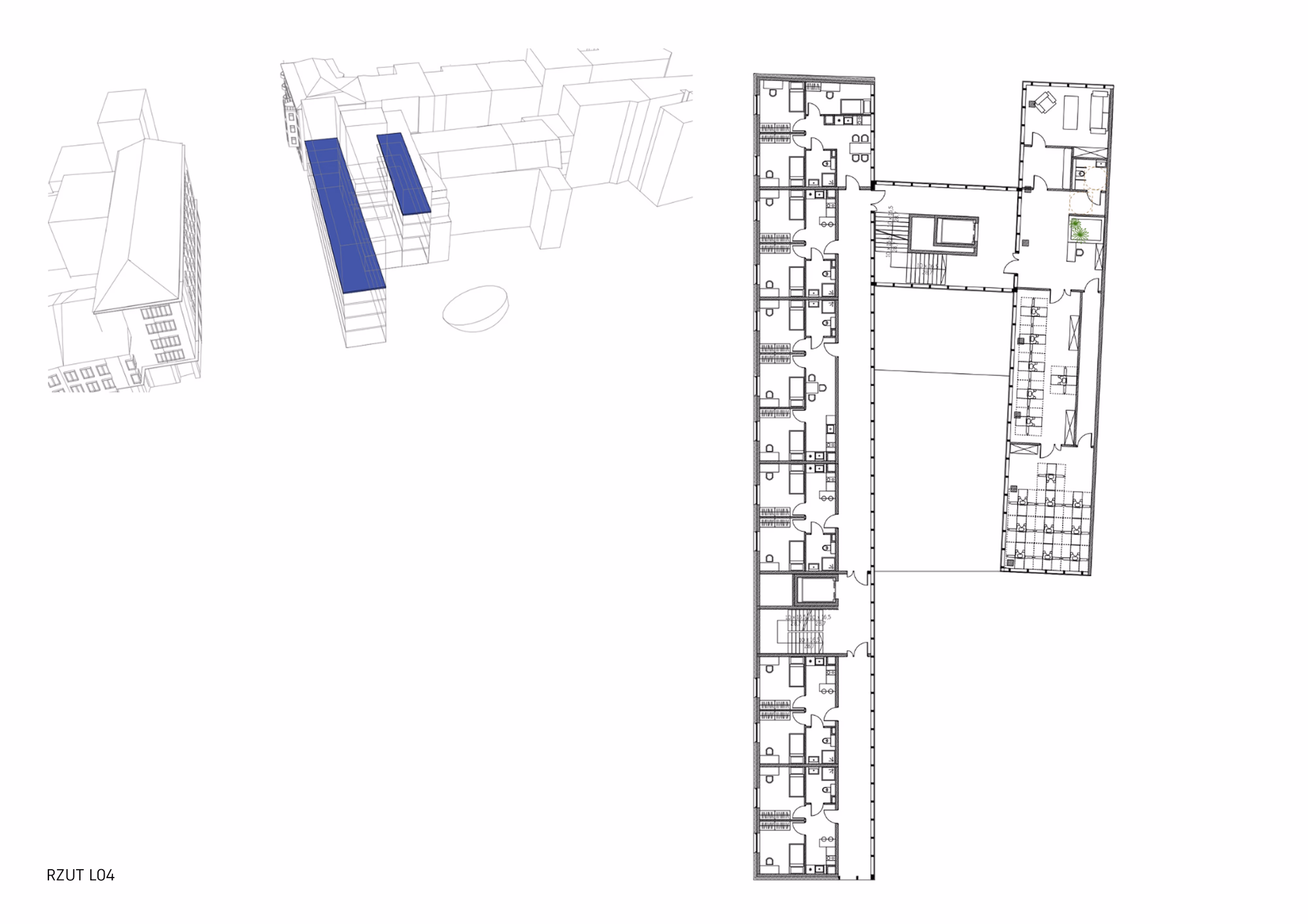
Projekt obejmuje akademik z rozbudowanym programem przestrzeni wspólnych dla studentów. Zlokalizowany jest na działce przy ul. Pomorskiej we Wrocławiu. Teren wyróżnia się wyjątkowymi walorami krajobrazowymi- znajduje się w bezpośrednim sąsiedztwie rzeki Odra, a z działki rozciąga się widok na zabudowę akademicką i historyczną: gmach Uniwersytetu, budynek Archiwum Państwowego z Wydziałem Fizyki i Astronomii. Wybór funkcji akademika był odpowiedzią na realne zapotrzebowanie w tej części miasta. W bezpośredniej okolicy znajdują się liczne obiekty dydaktyczne Uniwersytetu Wrocławskiego oraz Politechniki Wrocławskiej, co czyni lokalizację szczególnie atrakcyjną dla studentów. W budynku zaplanowano stołówkę, przestrzenie mieszkalne oraz bogaty program funkcji uzupełniających. Do dyspozycji mieszkańców przewidziano m.in. bibliotekę, sale co-workingowe, audytorium, sale do ćwiczeń, siłownię, a także centrum psychologiczne i wsparcia studentów. Część mieszkalna obejmuje pokoje jedno-, dwu- i trzyosobowe. Układ mieszkań oparto na module o wymiarach 6 × 6 m, który umożliwia elastyczne łączenie i dzielenie przestrzeni. Dzięki temu możliwe jest tworzenie większych jednostek mieszkalnych i dostosowywanie układu do zmieniających się potrzeb użytkowników. Bryła budynku została zaprojektowana jako prosta i czytelna. Zachodni blok mieszkalny dostosowuje swoją wysokość do sąsiednich obiektów - Archiwum Państwowego oraz Wydziału Fizyki i Astronomii. Blok wschodni z przestrzeniami wspólnymi nawiązuje skalą do okolicznej zabudowy kamienicznej. Obie części połączone są centralnym trzonem komunikacyjnym z klatką schodową i windą. Elewacja zachodnia, od strony ul. Pomorskiej, wyposażona została w ruchome panele zacieniające wykonane z siatki cięto-ciągnionej, zamontowanej na prowadnicach. Zastosowano system harmonijkowy (składany), który umożliwia indywidualne kształtowanie wyglądu elewacji przez mieszkańców. Rozwiązanie to chroni wnętrza przed intensywnym, zachodnim słońcem, a nocą tworzy efektowną, półprzezroczystą fasadę delikatnie podświetloną światłem wnętrz. Pozostałe elewacje zaprojektowano w technologii ścian kurtynowych, tak aby maksymalnie otworzyć budynek na otaczające widoki i wprowadzić krajobraz Odry do przestrzeni wspólnych akademika. Otoczenie budynku zostało zaplanowane jako ogólnodostępna, przyjazna przestrzeń -nie tylko dla studentów. To miejsce spotkań, odpoczynku i relaksu w zieleni, sprzyjające integracji i spędzaniu czasu na świeżym powietrzu. W ramach zagospodarowania terenu zaprojektowano również niewielki obiekt małej architektury o lekkiej, subtelnej formie. Pełni on funkcję zadaszenia, pod którym można schronić się w upalne lub deszczowe dni, a jednocześnie mieści ogólnodostępną toaletę publiczną.